Project Description

Case Study – LV Britannia
Despite working with LV Britannia for over 10 years on various projects which began by us supplying and providing training for custom modular exhibition stands. Over the years this relationship developed into us designing and building their stand at Tow Show. The main requirement for this stand was to accommodate 4/5 group meeting areas whilst not appearing too overcrowded.


About the stand
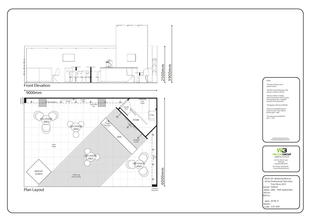
To achieve this we divide the stand into different areas by using a range of different furniture to accommodate the multiple meetings that are happening at any one time. This is comprised of 4 sit-down meeting areas and a more casual, relaxed area to stand at the bar to chat over hot or cold refreshments. Due to the nature of the Tow Show, LV Britannia have the largest stand of the kind at the show, this means that the stand acts as somewhat of the main attraction visitors head towards on entry.
Tow Show is a 1-day build-up, which means that time is of the essence when constructing this stand. This comes with the added challenge that the stand needs to be pre-decorated for the most part as in order to apply graphics to the stand the paint needs to be completely dry for them to adhere. One way that we alleviate some of this time pressure is through using large format fabric tension graphics, that not only save time whilst delivering an exceptional finish but also save the client money as they are reusable over multiple shows.
The exhibition plan
